Due to inclement weather, University of Cincinnati campuses are closed from 6 a.m. to 10 a.m. Dec. 12, 2025. Visit Commencement and Registrar's pages for additional details.

Housing

Scioto Hall

Exterior of Scioto Hall. There are trees and green space in front of the building.

Scioto Hall is Morgens Hall’s twin. This apartment community's floor-to-ceiling windows provide a breathtaking view. Features include a study lounge, service center, and social lounge that Scioto residents share with the neighboring residence hall, Marian Spencer. Students describe Scioto Hall as a quieter community with plenty of opportunities to get involved. Think of all the friendships, connections and possibilities when you choose Scioto as your new home.

Honors themed floors are available in Scioto Hall.


Living in Scioto

Bedroom in Scioto Hall.

Scioto Hall houses a total of 456 students. The building is coed by apartment. There is a kitchen in each apartment that includes a countertop microwave and stovetop/oven combination. There is vinyl composition tile flooring in the bedroom, living area, and kitchen, while the bathrooms have ceramic tile.Replace with your text

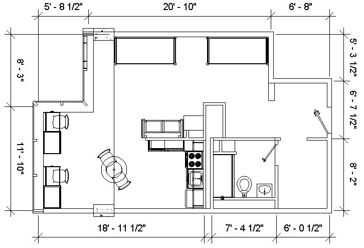
  • 2-Person Studios with a 10 cubic ft. refrigerator/freezer combination
  • 3-Person Studios with a 10 cubic ft. refrigerator/freezer combination
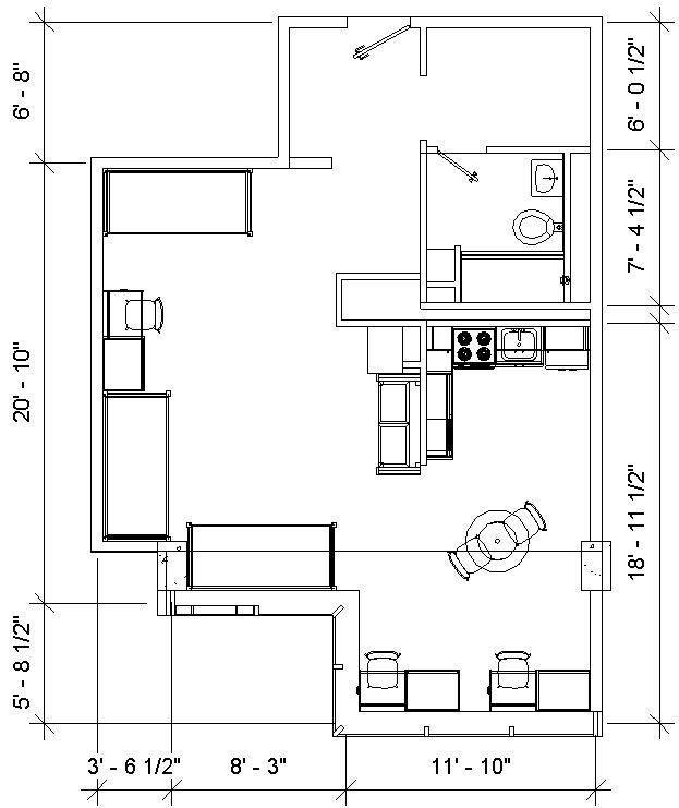
  • 4-Person, 2-Bedroom/1-Bath with a 18.1 cubic ft. refrigerator/freezer combination
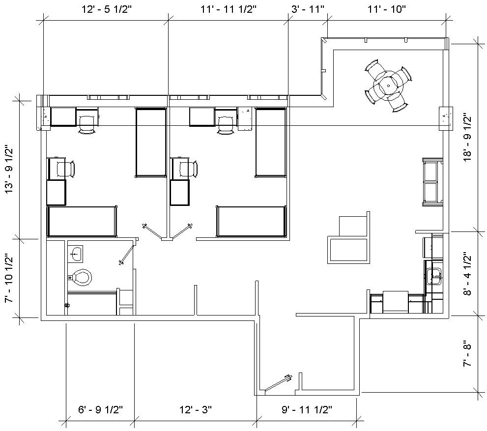
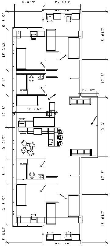
  • 8-Person, 5-Bedroom/2-Bath with a 20.3 cubic ft. refrigerator/freezer combination
  • Hall laundry
  • Hall study lounge
  • Recreational equipment on lobby floor
  • Bed Size: Twin XL

Address

Driving Directions

Scioto Hall
2921 Scioto Lane
Cincinnati, OH 45219

Service Desk: 513-556-5135

Delivery services such as Instacart, Kroger Delivery, WalMart+, DoorDash, Grubhub etc., should use this address.


All Mail and Packages

[Your Full Name*], [Your Central Login]
Bearcats Package Center
2715 Bearcat Way
Cincinnati, OH  45219-3539

*We recommend you use your full name as registered in Catalyst, and include a middle initial, for most efficient processing of your packages. Your Central Login (6+2) is required as well.


360 Video Tours

Service Center & Lobby


Double (2-person) (formerly studio triple)


Quad (4-person Room)


5-bedroom, 8-person Apartment


Video Tour of 8-person, 5-bedroom Apartment


Floor Plan and Images

single bed room design
double bed room design