Housing

Graduate Apartments

Embarking on a graduate program is the beginning of an exciting adventure. Whether you are new to Cincinnati or continuing your graduate studies at UC, we have a variety of housing options designed to meet the diverse needs of graduate students.

Graduate & Family housing includes multiple apartment communities with accommodations that range from studio apartments to one, two and three-bedroom living spaces conveniently located to UC with access to transportation and on-site management. 

Exterior of Bellevue Gardens. There are balconies and window visible on the apartment building. There is a green iron gate with brick posts in front of the building and a row of trees in front of the gate.

Bellevue Gardens is an apartment community owned and operated by the university. Unit types range from spacious studio apartments to one, two and three bedroom floor plans.


Living at Bellevue Gardens

The property is conveniently located adjacent to the Academic Health Center (AHC), consisting of the Colleges of Medicine, Nursing, Pharmacy and Allied Health Sciences and the Uptown University of Cincinnati campus. Only minutes away from downtown and major highways puts great shopping, dining and recreational activities right at your fingertips.

  • Conveniently located adjacent to the Academic Health Center and University of Cincinnati
  • UC Shuttle stop nearby
  • Private intercom-controlled access to apartment units
  • On-site laundry facilities
  • High-efficiency heat and A/C
  • All utilities, including internet, are included
  • Just minutes from downtown Cincinnati and many of Cincinnati's hot spots
  • 24-hour on-call emergency maintenance
  • Kitchen with dishwasher, garbage disposal, refrigerator, electric range (microwave not provided)
  • Abundant closet space
  • Balconies/patios
  • Streaming TV service

Addresses

Driving Directions

Cincinnati map and Car navigation

Corresponding to unit numbers:

215 Martin Luther King Dr E                                                                              Cincinnati, OH 45219

223 Martin Luther King Dr E
Cincinnati, OH 45219

231 Martin Luther King Dr E
Cincinnati, OH 45219

239 Martin Luther King Dr E
Cincinnati, OH 45219

Service Center: 513-221-1555

Delivery services such as Instacart, Kroger Delivery, WalMart+, DoorDash, Grubhub etc., should use this address.

All Mail and Packages

letter and package

[Your Full Name*], [Your Central Login]
Bearcats Package Center
2715 Bearcat Way
Cincinnati, OH  45219-3539

*We recommend you use your full name as registered in Catalyst, and include a middle initial, for most efficient processing of your packages. Your Central Login (the letters/numbers before @ in your UC email address) is required as well.


  • Tenants can submit work requests for repairs to your apartment or the equipment found within by calling Work Control at 513-558-2500 from 7:30 a.m. - 4 p.m., Monday - Friday, when university offices are open.
  • Call UCPD Dispatch at 513-556-1111 for work requests needing prompt or immediate attention outside of these hours.
  • Contact our office at 513-556-0682 for further instructions regarding pre- and post- pest control treatment protocol.
  • Report smoke detector or public address system issues to UCPD.

Provide your apartment number and the specific issue when making a work request.  Contact our office for unresolved issues or questions about the reporting process. 


Room Types

Studio apartments are single (1-person) occupancy.
 
  • 215-01
  • 215-02
  • 223-01
  • 223-02
  • 231-01
  • 231-02
  • 239-01
  • 239-02

These are 1-bedroom apartments with a shared double-occupancy (2-person) bedroom.  

  • 215-04
  • 215-08
  • 223-05
  • 223-09
  • 231-04
  • 231-08
  • 239-05
  • 239-09

These 2-bedroom apartments have two single-occupancy (1-person) bedrooms.

  • 215-03
  • 215-07
  • 223-06
  • 223-10
  • 231-03
  • 231-07
  • 239-06
  • 239-10

These 2-bedroom apartments will accommodate 3 students.  They contain one double-occupancy (2-person) bedroom and one single-occupancy (1-person)  bedroom.

  • 215-06
  • 215-10
  • 223-03
  • 223-07
  • 231-06
  • 231-10
  • 239-03
  • 239-07

These 3-bedroom apartments will accommodate 4 students.  They contain one double-occupancy (2-person) bedroom and two single-occupancy (1-person) bedrooms.

  • 215-05
  • 215-09
  • 223-04
  • 223-08
  • 231-05
  • 231-09
  • 239-04
  • 239-08

Senator Place is not available for 2026-27

Please note, University Housing's lease of Senator Place will conclude at the end of the 2025-26 academic year. Any students interested in living at the property should inquire directly with Uptown Properties. 

222 Senator Place is an apartment complex within walking distance of the uptown campus which is dedicated to housing graduate students. The University of Cincinnati has an agreement to offer all units in this complex to graduate students. We hope this will build a community for our students, and especially assist those who are coming to Cincinnati and Ohio for the first time. 

Exterior of Senator Place. There is a sidewalk with green grass on either side that path goes past a building on the left and directly towards a building in the background. There is a tree with a bench under it to the left of the sidewalk.

Apartment Tour Videos

The video tours of renovated one and two bedroom apartments highlight their modern features and conveniences.  The updates are the same in the three bedroom apartments.

Living at Senator Place

A group of about a dozen graduate student residents gathered in front of the Senator Place apartments.

Senator Place is located in the Clifton Gaslight area near the Ludlow shopping and entertainment district. The complex includes the following features:

  • UC shuttle access nearby with UC NightRide access available 
  • Water, trash/sewage, heat, air conditioning, electricity, and high-speed internet included in the rent
  • Kitchens that include full refrigerators, stove/oven unit, and sink
  • On-site laundry facilities 
  • 24-hour emergency maintenance
  • Ceiling fans
  • Cable-ready
  • Secure entry and balconies/patios (many units)
  • Reserved parking space in lit parking lot at each complex.*
  • Resident Apartment Manager staff on site
  • Units are unfurnished

Parking at Senator Places is not included in your rental fees. You may purchase a permit for your community's garage/lot annually through Parking Services.


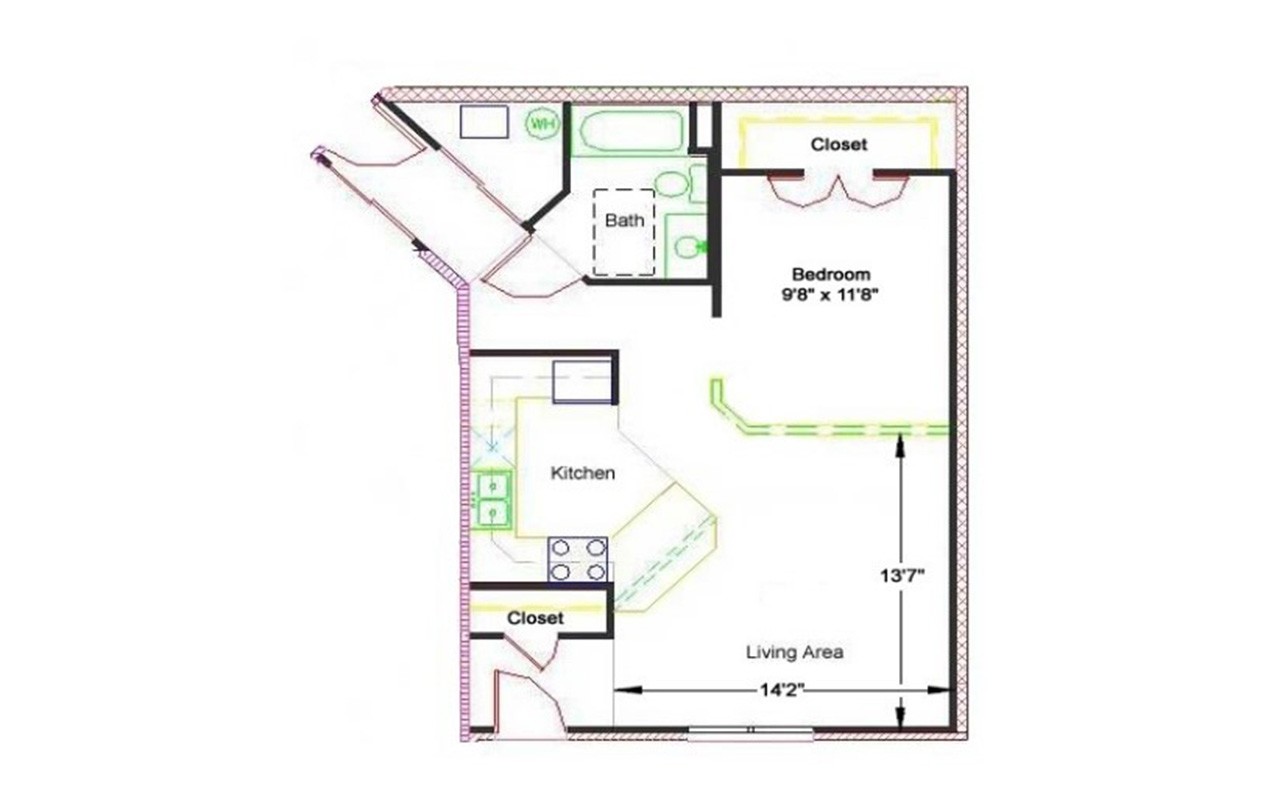
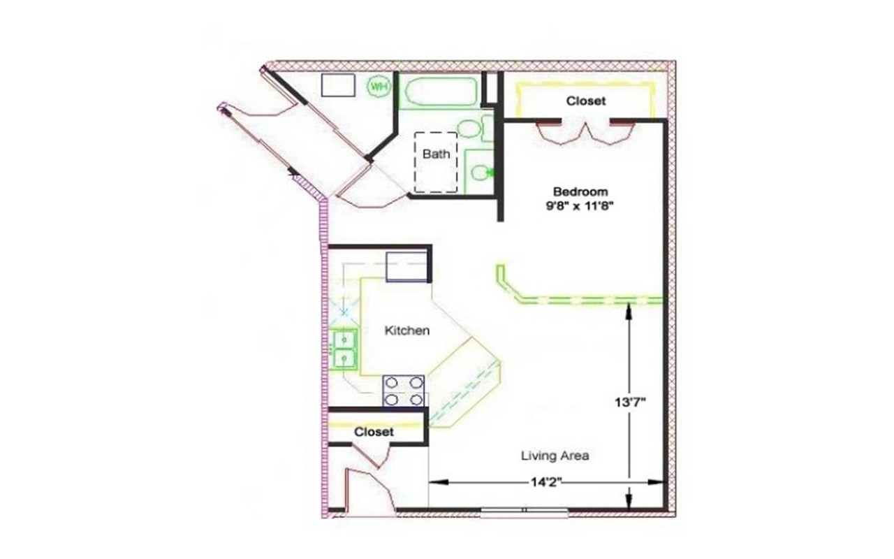
Floor Plans and Images


Occupancy and Eligibility

Each year, part of the Graduate Housing application process involves allowing current residents the opportunity to sign up to live in their current assignment again for the next year. Because University Housing will not be renewing its lease with Senator Place, Senator Place students will follow the below process. 

Renewal for Senator Place residents:

  • Late Feb.: Contract Renewal and room retention occurs.
    • Current residents Senator Place will be given the opportunity to indicate interest in relocating to Bellevue Gardens at the highest priority. Offers are not guaranteed and will be made to interested residents based on availability. 
  • Mid-Mar.: Graduate housing application opens to all students. 

The apartments at 222 Senator Place (for AY 2025-26) and Bellevue Gardens (for AY 2026-27) are leased through our office are reserved for graduate students.

Certain individuals who are not eligible to lease apartments, but who are members of the Lessee's Immediate family (defined as spouse, child, legal ward, parent or sibling) or are a Lessee's domestic partner may jointly occupy the apartment with an eligible Leesee at Senator Place.

The maximum occupancy limits are noted below:

  • Studio: One adult
  • One bedroom: two adults or two adults and one child under one years of age
  • Two bedroom: four adults or combination of adults and children not to exceed four people
  • Three bedroom: five adults or combination of adults and children not to exceed five people
Refer to the communities pages to determine which unit types are available for each complex.

Tenants are responsible for finding their own roommates.

No, pets are not permitted to stay in graduate or undergraduate housing.